Drink

348 Congress Street
Boston, MA
Opened Summer 2008
General Contractor: Cafco Construction
Visit the Drink Website

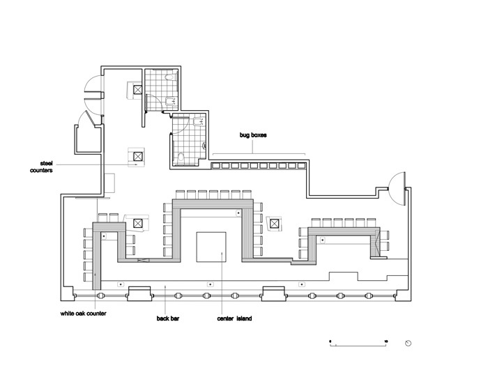
The design intention at Drink was to leave the space as we found it—granite foundation boulders, exposed bricks walls, wood ceiling beams—all the raw structural elements that give the space, indeed the whole neighborhood, it’s rough/elegant industrial quality. The design evolved during the construction process; we originally had a more elaborate scheme, but as the space was exposed during demolition, we liked what we found and reduced the number of design “moves”. We decided that character of Drink would be determined, as much as possible, by the raw space we were given. What we did add to the space we tried to add judiciously.

The bar zigzags through the space—weaving among existing columns and new ones that were added to support the 3 new floors at the top of the host building— creating 6 corners and 3 bays. Corners are the first choice of seating for most customers, and the bays allow groups to gather without interrupting the people sitting at the bar. A second bar along the back wall of the space displays an early 20th century collection of insects, known at Drink as “bug boxes”, while raw steel counters attached to the existing columns create more places to linger. The bartenders at Drink create artisanal classic cocktails. That there are fresh herbs and citrus fruit visible behind the bar but no liquor bottles on display, gives the space an intimate, non-commercial feel.
The materials used in the space are humble. The bar “grows out” of the floor—both are quartersawn white oak. The foot rails are made of black iron pipe with standard industrial fittings. The countertops at the back bar and center island are Fireslate. The bartenders’ workstations are custom designed stainless steel units. The stools are galvanized steel. Reproduction Edison bulbs with exposed filaments hanging from linen disks create a line of light that follows the bars’ contours.
Visit the Drink website