Sportello

348 Congress St.
Boston, MA
Opened 2008
General Contractor: Cafco Construction

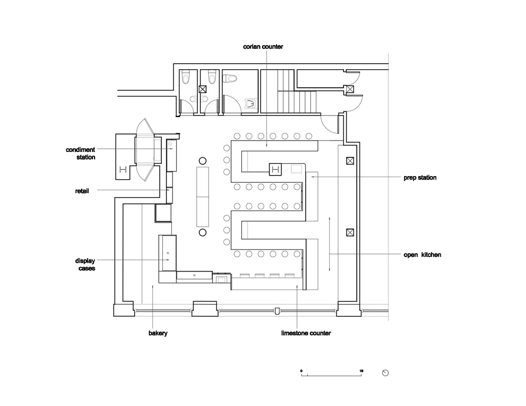
Part of the complex of Barbara Lynch Gruppo projects in South Boston, Sportello is half a flight up the stairs at 348 Congress Street, just above Drink. Barbara Lynch’s inspiration for the space was from childhood memories of Boston’s lunch counters. The idea was to marry the casual atmosphere of those lunch spots with sophisticated, hearty Italian cuisine.

The space is bright and open with a large window facing southwest. The counter is a continuous matte white Corian surface with a large bullnose edge The counter stools are wood, the floor is cork, the wall under the counter is brown Pirelli rubber with raised dots, the light fixtures are oversized spheres, and the walls are white. Signage is mounted on industrial aluminum clipboards. Restrooms sport bold brown and white striped tile. We like to think of the whole effect as Woolworth’s meets Milan, 1970.

The open stainless steel kitchen creates a theatrical atmosphere where the cooking is the star. A takeout counter and retail area play supporting roles.